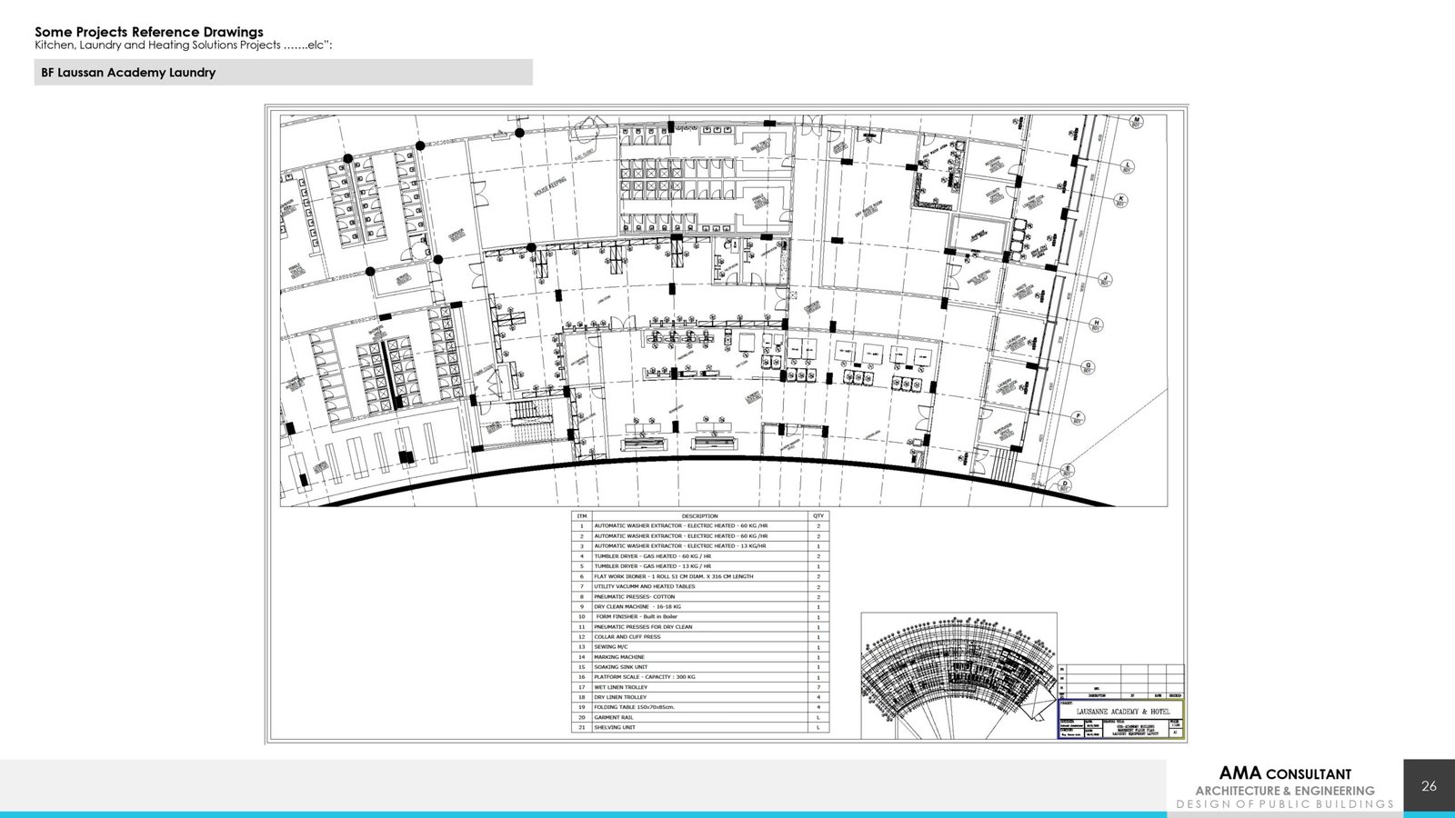
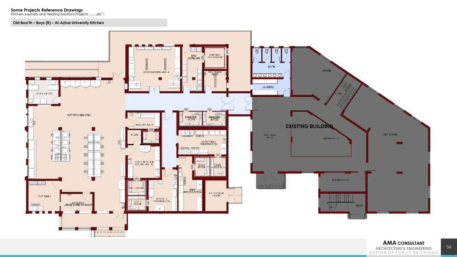
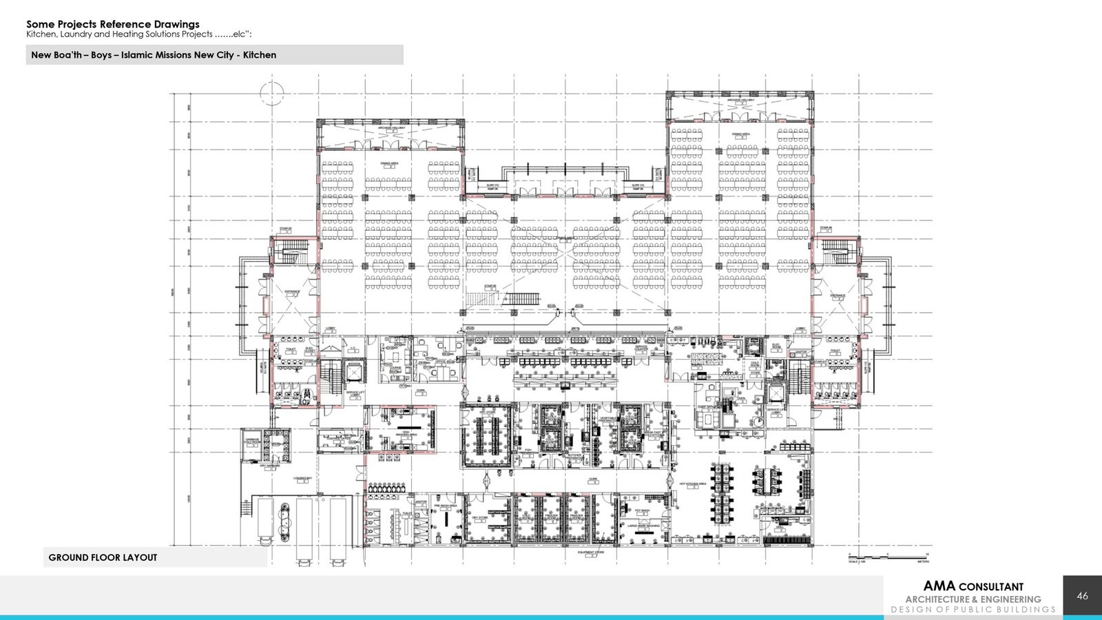
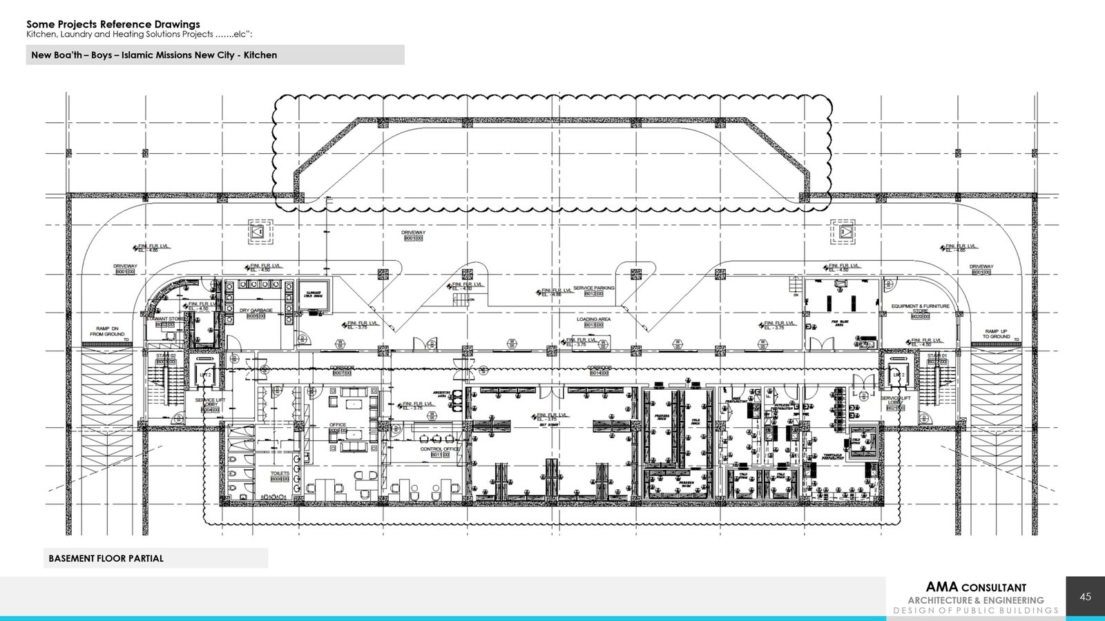
Kitchen, Laundry and Heating Solution
By amaconsultant2024@gmail.com / August 12, 2025 / No Comments
By amaconsultant2024@gmail.com / August 12, 2025 / No Comments
